Bawtry Road

Bessacarr, Doncaster DN4 7BW
£750,000

Detached House

4 bedrooms
3 bathrooms
3 reception rooms
3 parking spaces

Overview

  • Four Bedroom Detached Family Home
  • Sizeable Plot with Approximately 1/2 an Acre of Land
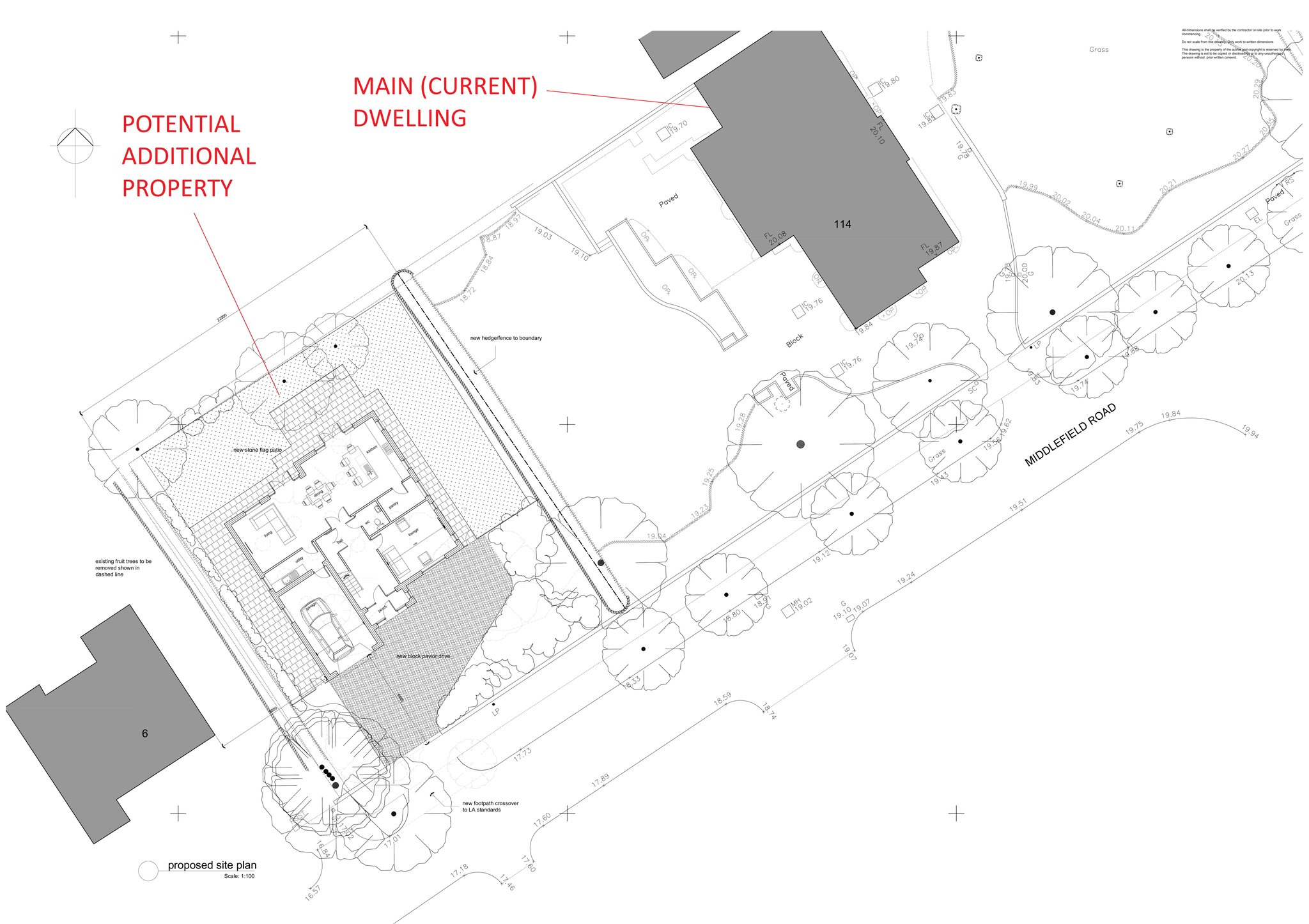
  • No Chain
  • Potential additional property - previous planning GRANTED - renewed application validated (DMBC Ref. 25/01601/OUT)
  • Three Reception Rooms
  • Two Garages, Outbuilding and a Driveway
  • Two Family Bathrooms and an En Suite to the Master
  • Great Potential for Development
  • 3D Virtual Tour Available
  • Affluent & Desirable Location with Local Amenities, Schools and Transport Links

Why choose this home

This spacious four bedroom detached family home occupies a generous corner plot of approximately 1/2 an acre, offering fantastic outdoor space and excellent potential to enhance or develop further (subject to planning). The property is surrounded by mature gardens to the front, side and rear. To the exterior, there is a driveway and two separate garages, along with a useful attached outbuilding offering additional storage. Inside, the home offers a versatile layout with three large reception rooms, allowing flexibility for family living, entertaining or working from home. The kitchen sits at the heart of the property, with a shower room/WC located on the ground floor for convenience. Upstairs, there are four well-proportioned bedrooms, including a large master bedroom with ensuite, and a further family bathroom. This is a rare opportunity to acquire a substantial property and land with scope to modernise and create a dream family home. Potential to build additional property - previous planning GRANTED - renewed application validated (DMBC Ref. 25/01601/OUT).

Ground Floor

First Floor

Externals

PLANNING APPLICATION

Property Information

Council Tax Band - G
Utilities - Mains Gas, Mains Electricity, Mains Water
Water Meter - Yes
Tenure - Freehold
Solar Panels - No
Space Heating System - Gas Boiler with radiators
Approximate Heating System Installation Date - 11/21/2016
Water Heating System - Gas Boiler (Hot Water Tank)
Approximate Water Heating Installation Date - 11/21/2016
Boiler Location - Utility room
Approximate Electrical System Installation Date -
Permanent Loft Ladder - No
Loft Insulation - Yes
Loft Boarded out – No
Restrictions on the use of the property which would impact a buyers general use of the property or land - Covenants within original 1964 land conveyance

Whilst every effort is made to ensure that the information contained in these particulars is reliable, they do not constitute or form part of an offer or any contract. The Property Hive accept no liability for the accuracy of the contents, and therefore they should be independently verified by prospective buyers or tenants before agreeing an offer. All measurements provided are approximate and should be verified before exchange of contracts. No appliances, fixtures or fittings have been tested and should be checked by the buyer before exchange of contracts to ensure they are in good working order.

EPC

EPC

Utility Supply

Electric: Mains Supply

Water: Mains Supply

Heating: Gas Central

Broadband: ADSL

Sewerage: Mains Supply

Right and Restrictions

Private rights of way: Ask Us

Public rights of way: Ask Us

Listed property: Ask Us

Restrictions: Ask Us

Risks

Flooded in last 5 years: Ask Us

Flood defenses: Ask Us

Source of flood: Ask Us

Council Tax

Band G

Parking

Driveway, Garage

Garden

Yes

Accessibility

Ask Us

View Online

Arrange a viewing

Check available times to view this property and book an appointment online yourself to take a look around.

Wed 25 Feb